



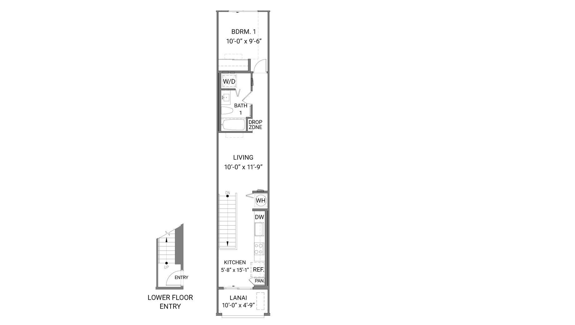
This two story, one bedroom, one bathroom condominium offers 572 square feet of net living area. Upon entering the home, you are welcomed by the staircase that leads you to the main living area. At one end of this residence, the kitchen features stainless steel appliances and white soft-close cabinetry. Just off the kitchen, the lanai provides relaxing space to enjoy fresh air and the outdoors. Past the living area, the central hallway leads you to the bathroom with a vanity sink and combined bathtub and shower. Inside the bathroom, you’ll find the laundry area. Additionally, the bedroom with a mirrored sliding-door closet is privately situated at the opposite end of the home. Split air conditioning and modern appliances including a range/oven, micro-hood, dishwasher, refrigerator, and washer/dryer add comfort and convenience for easy living.
| 5 days ago | Listing first seen on site | |
| 5 days ago | Listing updated with changes from the MLS® |
Did you know? You can invite friends and family to your search. They can join your search, rate and discuss listings with you.